SS數位式電極 TS-1000-D
SS數位式電極 TS-1000-D
- 測量範圍:0.00~1000.0 mg/L
- 線 長:9m
- 數位輸出:MODBUS (RTU/ASCII)
- 本體材質:SUS316L(淡水) / SUS329J4L(海水)
- 操作溫度:0~40 °C
- 尺 寸:Ø32 x 163 mm
- 重 量:930g
- 防水等級:IP68
- 自動清洗:有
- 電 源:24 VDC ± 10%
我要購買
我要兌換
- 測量範圍:0.00~1000.0 mg/L
- 線 長:9m
- 數位輸出:MODBUS (RTU/ASCII)
- 本體材質:SUS316L(淡水) / SUS329J4L(海水)
- 操作溫度:0~40 °C
- 尺 寸:Ø32 x 163 mm
- 重 量:930g
- 防水等級:IP68
- 自動清洗:有
- 電 源:24 VDC ± 10%
產品說明
產品特色
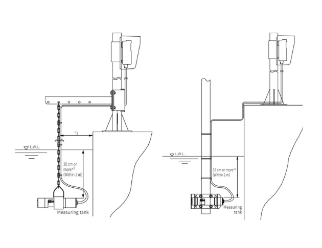
- 設計精密緊實,安裝容易。
- 內置雨刷自動清潔系統,確保光學鏡頭的準確性。
- 光學鏡頭採藍寶石材質,不易刮傷。
- 適用飲用水、汙水、海水(TS-1000SP-D)。




